Skip to content

Y301-880 I/O模块规格书

Y301-880产品图片

统一Modbus与自动化参考: Y301系列Modbus技术手册

目录

  1. 概述
  2. 订购信息
  3. 主要特性
  4. 技术规格
  5. 接口与引脚说明
  6. 机械与环境
  7. 自动化与联动规则

1. 概述

Y301-880是Y301家族的旗舰产品,在145 × 90 × 40 mm外壳中结合了八个光隔离数字输入和八个高功率继电器输出。它为PLC扩展、楼宇自动化和大规模遥测系统提供最大的Modbus-RTU I/O密度。

型号DIDOAI典型角色
Y301-88088 (SPDT)多区域数字自动化

定位亮点

  • Y301系列中最大I/O数量,适用于纯数字控制
  • 所有16个通道独立指示灯加系统状态LED
  • 坚固的自动化固件,带16个联动规则和DO保持

2. 订购信息

2.1 型号命名

Y301-880-IF

  • IF → 接口选项:RS485(默认)、RS232或TTL

2.2 SKU矩阵

SKU接口描述
Y301-880-RS485RS485多点总线部署
Y301-880-RS232RS232点对点 / HMI集成

2.3 包装内容

模块、数字快速参考、保修单。可选配件:DIN夹具、USB-RS485转换器、24 VDC电源、屏蔽RS485布线套件。


3. 主要特性

  1. 16点数字I/O – 八个干/湿接点DI通道加上八个SPDT继电器输出。
  2. 高功率继电器 – 每通道AC 277V/10A或DC 28V/10A,带独立COM/NO/NC端子。
  3. 自动化引擎 – 最多16个联动规则(每个DO两个),涵盖跟随、脉冲、定时器、逻辑和调度模式。
  4. 可扩展寻址 – 软件Modbus地址1–255加上5位DIP偏移(0–31),适用于面板部署。
  5. 工业级构建 – 5~36V DC输入,-40°C~85°C,硬件看门狗,重载按钮,浪涌保护通信。

4. 技术规格

4.1 电气与环境

参数规格
供电电压DC 5~36V
典型电流260 mA @ 12V
最大电流350 mA @ 12V(所有继电器通电)
工作温度-40°C ~ +85°C
湿度5~95% RH,非冷凝

4.2 数字输入

项目规格
通道数8
类型干/湿接点,光隔离
电压范围5~36V(湿接点模式)
输入电流<5 mA/通道
采样率100 Hz
脉冲计数器每通道32位
消抖5–255 ms(默认50 ms)

4.3 数字输出

项目规格
通道数8 × SPDT继电器
触点额定值AC 277V 10A / DC 28V 10A
最小负载AC 10V 10 mA
开关时间<10 ms吸合 / <5 ms释放
电气寿命额定负载下100k次循环
状态保持无 / 软重启 / 完全

4.4 通信

项目规格
接口RS485(2线),RS232,TTL可选
协议Modbus-RTU从站
波特率600–230400 bps(默认9600)
从站地址1–255(软件)+ DIP偏移0–31

5. 接口与引脚说明

5.1 端子概览

描述
电源V+、V-螺钉端子 + DC 5.5×2.1 mm插孔
DIP开关SW1–SW5(二进制地址偏移)
重载按住3–15秒恢复出厂默认值
DICOM+、COM-、DI1~DI8
DO通道1–8的NCn / COMn / NOn
通信A/B/GND(RS485)或TX/RX/GND(RS232/TTL)

5.2 接线指导

  • 使用20–16 AWG电源线,配备上游2 A保险丝。
  • 干接点DI:通过接触闭合将COM+桥接到DI;湿接点DI:外部5–36V参考到COM-。
  • DO:为感性负载添加RC缓冲器(AC)或续流二极管(DC);保持负载在继电器额定范围内。
  • RS485:屏蔽双绞线,总线两端120 Ω终端,带公共参考地。

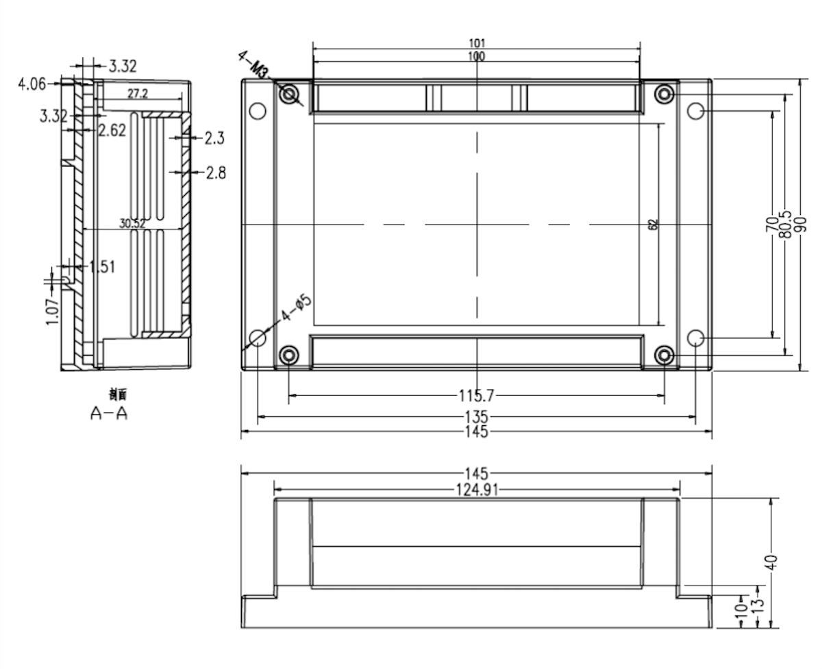
6. 机械与环境

Y301-880尺寸

项目数值
尺寸145 × 90 × 40 mm
安装35 mm DIN导轨夹具或螺钉槽
防护IP20
外壳UL94 V-0阻燃塑料

保持上方/下方≥20 mm间隙,侧面≥10 mm,前方≥60 mm用于接线和气流。


7. 自动化与联动规则

模式描述
DI跟随DO镜像一个或多个DI状态
脉冲输出可配置ON/OFF脉冲宽度
延迟控制可编程开/关延迟
循环切换周期性ON/OFF循环
定时器/调度基于日历的激活窗口
按钮模式瞬时按钮行为
逻辑模式AND/OR/XOR组合
看门狗模式如果DI超时发生,DO自动复位
  • 最多16个规则(每个DO通道2个)
  • 规则本地执行,无需主机轮询
  • 如果启用,DO保持存储最后的自动化状态

  • 制造商:湖南研几科技有限公司
  • 地址:中国湖南省长沙市雨花区迎新路复地星光天地1栋21014室
  • 邮箱hi@yanjiiot.com
  • 网站www.yanjiiot.com